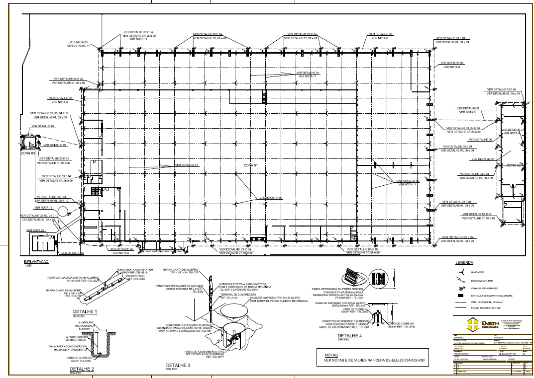
Foi realizada a análise de risco, sondagem geoelétrica do solo e elaboração doprojeto de Sistema de Proteção contra Descargas Atmosféricas (SPDA) para uma indústria com área aproximada de 10.000 m². Projeto desenvolvido conforme norma NBR 5419-2015:2018, com captação, descidas e aterramento, garantindo proteção estrutural e dos sistemas elétricos.
CLIENTE
Slotter Industria de Embalagens
LOCALIZAÇÃO
Mogi das Cruzes/SP
ÁREA
10.000m²
Serviços Executados
Projeto de Sistema de Proteção contra Descargas Atmosféricas
Realizado projeto de SPDA completo, incluindo sondagem geoelétrica do solo.
Pronto Para Iniciar Seu Projeto?
Entre em contato conosco e descubra como podemos transformar suas ideias em realidade com excelência e inovação.