Projeto e execução de cabine primária

Sobre o Projeto

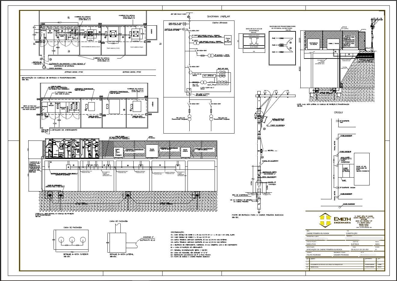
Desenvolvimento e execução de projeto de cabine primária blindada, incluindo estudo de seletividade e parametrização do Relé URP 6000 (Pextron), para transformadores de 500 kVA, 225 kVA e 30 kVA (bombeiro), com aprovação junto à concessionária EDP São Paulo.

CLIENTE

Villa das Folhas

LOCALIZAÇÃO

Salesópolis/SP

Serviços Executados

Projeto de Instalações Elétricas

Projetos da cabine primária blindada em conformidade com as normas da concessionária EDP São Paulo.

Execução de Instalações Elétricas

Execução dos projetos de cabine primária aprovado, seguindo normas vigentes e diretrizes da concessionária EDP São Paulo.

Pronto Para Iniciar Seu Projeto?

Entre em contato conosco e descubra como podemos transformar suas ideias em realidade com excelência e inovação.